Login with Social Profiles

Facebook Google

Existing Account?

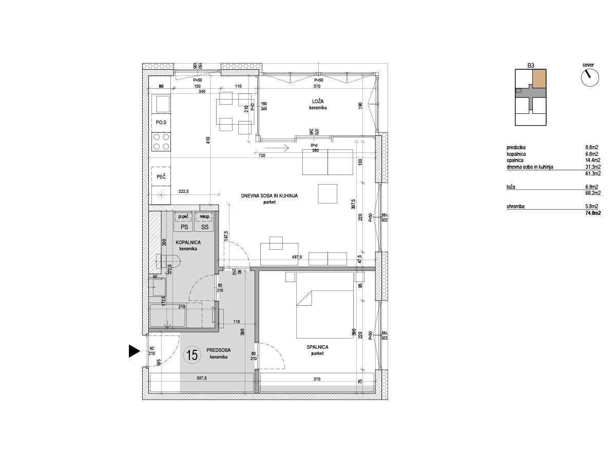
Stavba B3 - stanovanje št. 15

PRODANO
 
 
2 sobno
74 m2
PRODANO
15
Del stavba
B3
Stavba

Cena za stanovanja vključuje tudi pripadajočo shrambo, ter DDV v višini 9,5% .
Vse navedene cene vključujejo tudi vrednosti pripadajočih deležev na skupnih in posebnih skupnih delih stavbe.
V ceno stanovanja ni vključeno parkirno mesto v pritličnem delu stavbe.
Cena posameznega parkirnega mesta z DDV znaša 14.500 EUR.
Površine stanovanj zajemajo neto bivalno površino, neto površino lože oziroma terase, ter neto površino shrambe.